Módulo B
Descrição
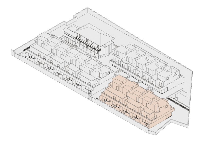
O módulo B é composto por 5 novas moradias unifamiliares.
A maioria das moradias disponíveis neste local têm em média 4 pisos, todos acessíveis por elevador.
Além disso, estas moradias possuem quartos equipados com vestiário e casa de banho privada, bem como acesso a um jardim privado e lugares de estacionamento na garagem. Além disso, estas moradias oferecem uma ampla variedade de comodidades e serviços num ambiente exclusivo, seguro e único.
No interior, mantemos a ideia de um estilo acolhedor, simples e elegante. Simplicidade e naturalidade combinadas sob um único design.
Esta área residencial está a ser avaliada pela Breeam International, a certificadora de construção sustentável mais rigorosa do mundo, por isso, ao investir numa casa, não estará apenas a investir numa habitação, mas também em saúde, poupança e bem-estar.
Cada casa tem as suas próprias peculiaridades, por isso, consulte os detalhes e faça o download dos planos na caixa de especificações.
Especificações
Solicite uma consulta
Información básica sobre protección de datos Ver más
- Responsável: DMANAN VIVIENDAS S.A.U..
- Propósito: Responder ao pedido de informação.
- Legitimação: O consentimento do interessado
- Destinatários e responsáveis pelo tratamento: Os dados não são transferidos
- Direitos: Acesse, retifique e exclua os dados.
Características gerais
- Habitações : 5
- Quartos: 4+1
- Casas de banho: 5
- Terraço: sim
- Jardim privado: sim
- Garagem: sim
Documentação
Solicite uma consulta
Información básica sobre protección de datos Ver más
- Responsável: DMANAN VIVIENDAS S.A.U..
- Propósito: Responder ao pedido de informação.
- Legitimação: O consentimento do interessado
- Destinatários e responsáveis pelo tratamento: Os dados não são transferidos
- Direitos: Acesse, retifique e exclua os dados.



